Содержание
Лучшие планы загородных домов собраны в нашем онлайн-каталоге, где можно найти готовые решения для частного жилья. А с помощью фото и подробных описаний вы подберете вариант для себя.
Особенности планировки при проектировании
Чтобы создать уютный и комфортный дом, важно правильно спланировать его внутреннее пространство. Это означает не только учесть общие размеры и площади помещений, но и разделить их на разные функциональные зоны. Можно выделить область для хозяйственных нужд и зону для проживания. Последняя делится на участки для вечерних и дневных активностей, а также на отдельные помещения для гостей, детей и взрослых.
В дневную зону коттеджа включаются:
- предбанник;
- вестибюль;
- приемная;
- зал;
- обеденная комната;
- балкон или патио;
- санузел.
В дневной области размещаются помещения для семейного времяпрепровождения и приема гостей: зал, комната отдыха и обеденная зона.
Во второй половине суток предусмотрена зона для отдыха и сна, включающая спальни, гардеробные помещения и ванные комнаты, гарантирующие комфорт и уединение в это время суток.Начало формы
Домашний сектор включает в себя комнаты для бытовых нужд и хранения – кухня, стиральная, погреб, а также гараж и мастерская для ремонтов и хранения инструментов.
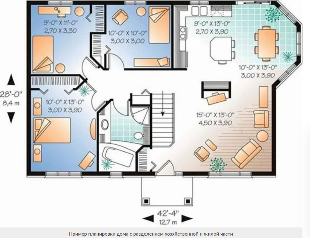
На фото показан образец грамотного разделения пространства. Справа расположена зона, которая включает зал, кухню и обеденную комнату, объединенных без использования перегородок. Слева находятся три комнаты для сна и ванная комната.

При планировке частного жилья важно учесть:
- размеры и форму жилища;
- число и распределение входов;
- этажность строения;
- используемые строительные материалы;
- наличие отопительного оборудования и прилегающего помещения для хранения автомобиля;
- распределение и число ванных комнат, которые иногда размещают на каждом уровне в многоэтажном коттедже;
- число и размер оконных проемов;
- слияние кухни, обеденной зоны и гостевого уголка;
- наличие транзитных помещений.
При возведении просторного жилища, где каждая комната имеет свое назначение, можно рассмотреть возможность добавления зимнего огорода, территории для спорта, места для игры в бильярд и бассейна.
При разработке плана возведения жилья необходимо учитывать соблюдение строительных и санитарных стандартов. Для комфорта человеку необходим определенный объем атмосферы — 25 м³. Недостаток воздуха может негативно сказаться на здоровье.
При проектировании числа и расположения окон, важно учитывать освещение помещений. Солнечная иллюминация определяет размещение жилых зон в проекте, чтобы обеспечить достаточное естественное освещение.
При проектировании загородного дома необходимо учитывать окружающий пейзаж. Желательно, чтобы из комнат для проживания открывался привлекательный вид. Хозяйственные пространства могут быть размещены там, где панорама за окном не так важна.
Актуальные тенденции включают создание чердаков, террас или затворенных площадок и альтанок. При выборе открытого варианта следует учесть ориентацию по солнцу и защищенность от ветра для уютного отдыха.
Желательно размещать входной проем с солнечной стороны с учетом направления ветра. Расположение дверной ручки и петель входной двери также определяется этим фактором.
Диаграмма ветров, основанная на наблюдениях за погодными условиями, помогает определить направление основных ветров. Это важно для удобства проживания. Дорожка к крыльцу должна быть ровной и комфортной для передвижения в любых погодных условиях, чтобы обеспечить безопасный и комфортный доступ к коттеджу.

Привязка проекта к местным условиям
При проектировании расположения здания важно учитывать направление ветра, состояние грунта и окружающую местность. Необходимо предусмотреть удобный доступ для автомобиля к жилью, а также удобные маршруты для доставки топлива и стройматериалов, а также для проведения различных строительных работ.
На участках с песчаной или глинистой почвой основание должно иметь дополнительную защиту от влаги, чтобы не допустить проблем с увлажнением стен и появлением грибка. Необходимо учитывать структуру грунта при расчете напряжения на основание и стены если планируется возведение многоэтажного особняка.
В проекте необходимо определить идеальные маршруты для размещения водоснабжения, газопровода и канализации. При анализе местности важно учитывать возможность бурения водозабора для обеспечения автономного водоснабжения загородного коттеджа.
Оптимальная площадь дома
При планировке здания или квартиры важно учитывать оптимальную площадь пространств и их расположение с учетом функциональности каждого.
При разработке дизайна здания или квартиры важно стремиться к оптимальной площади помещений и их распределению, учитывая функциональность каждого.
|
Помещение
|
Оптимальные характеристики
|
|
Детские комнаты
|
Уютная атмосфера с достаточным освещением, но без излишнего пространства
|
|
Столовая
|
Вместительное пространство для всей семьи; вторая по размеру комната
|
|
Пространства
|
Избегать длинных и узких помещений, максимально эффективно использовать доступное пространство
|
|
Кухня
|
Создание достаточного пространства для удобной готовки
|
|
Совмещение помещений
|
Экономия места, создание пространства путем объединения функциональных зон
|
|
Проходные комнаты
|
Рациональное использование пространства для сокращения холлов и коридоров
|
|
Общие габариты
|
Учет площади и количества помещений для создания просторного, но функционального пространства
|
|
Неиспользуемые помещения
|
Рациональное использование ресурсов на более полезные аспекты, избегание пустых пространств
|
Детские комнаты должны быть созданы с уютной атмосферой и достаточным освещением для спокойного сна детей, избегая излишнего простора.
В столовой должно быть достаточно места для комфортного обеда всей семьи одновременно, причем она должна быть второй по размеру, уступая только гостиной.
В столовой предпочтительно иметь достаточное место для удобного обеда всей семьи одновременно. Площадь обеденной зоны должна быть второй по величине после гостиной.
Кухня, как самое активно используемое пространство, должна быть широкой для комфортного приготовления пищи.
Совмещение комнат помогает сэкономить место и создать более просторное пространство.
Транзитные помещения необходимо использовать эффективно, чтобы минимизировать число вестибюлей и проходов, что облегчает передвижение по дому.
При выборе общей размерности дома следует учитывать количество и площадь предполагаемых помещений, чтобы обеспечить просторное, но функциональное пространство для небольшой семьи.
Неиспользуемые помещения могут стать дополнительной нагрузкой на бюджет домовладельца из-за затрат на отопление и обслуживание. Разумнее направить средства на более целесообразные аспекты, такие как улучшение дизайна здания или создание террасы для отдыха на территории участка.

Какой проект коттеджа выбрать один или два этажа
При выборе между одноэтажным и двухэтажным коттеджем стоит учитывать современные опции планировки, потребности и предпочтения семьи. Дополнительный этаж или мансарда придадут одноэтажному строению дополнительную функциональность. Двухэтажный вариант подходит большим семьям, эффективно использует ограниченное место участка. Расположение помещений и их организация зависят от габаритов здания и возможности его будущего расширения.
Сравнение особенностей одноэтажных и двухэтажных коттеджей:
|
Одноэтажный
|
Двухэтажный
|
|
- Чердак или цокольный этаж расширяют площадь
|
- Планировка обеспечивает отдельные зоны для жилья
|
|
- Чердак: спальное место, комната для ребенка, мастерская
|
- Первый этаж: гостевой уголок, кухня, ванные комнаты
|
|
- Подвальный этаж: технический блок, гараж
|
- Второй этаж: комнаты для сна, рабочее пространство, гардеробные
|
|
- Экономичнее строить с мансардой, чем с цокольным
|
- Наличие кладовой обязательно
|
|
- Пространственное использование ниш и перегородок
|
- Санитарные узлы на этажах над друг другом
|
|
- Совмещение функциональных зон для увеличения комфорта
|
- Коммуникации делаются невидимыми
|
|
- Возможность использовать плоскую крышу как летнюю зону
|
- Нормы освещения учитываются на первом этаже
|
Этот сравнительный список подчеркивает характеристики и различия между одноэтажными и двухэтажными жилищами для наглядного сравнения.
Планировка дома с мансардой
Планировка особняка с чердаком предоставляет удобные спальные места, офис или комнату для ребенка. Это экономичный способ увеличить жилплощадь особняка, зачастую используемую для жилья. Преимущества мансарды – уединение и прекрасная панорама из окна. Для создания комфортной температуры требуется утепление перегородок и потолка, а яркое освещение достигается через панорамные окна. При предварительном планировании мансарды можно проложить все коммуникации на этаже. В случае если мансарда не предназначена для проживания, ее можно использовать как мастерскую или кладовую.
Пример планировки дома из двух комнат
При возведении небольшого коттеджа с двумя спальнями для одного или двух жильцов уделяется внимание оптимальному использованию доступного пространства.
Кухня объединяется с обеденной зоной, а санузел с туалетом. Для экономии места используются встроенные элементы – гардеробные и складские помещения. В жилище обязательно предусмотрено одно место для сна, а в гостевом уголке организуется место для ночлега. Ширина вестибюля составляет от 1,5 м, и если есть достаточно пространства, устанавливаются встроенные элементы для хранения одежды и обуви.
В двухуровневом доме пространства для проживания располагаются на верхнем этаже, а на первом находится бытовая зона – кухня, обеденная зона, котельная и кладовка.
При разработке плана строительства загородного коттеджа с двумя жилыми помещениями необходимо учесть:
- прихожую;
- общую зону;
- спальню;
- кухню;
- ванную комнату;
- кладовую.
В плане можно включить специальный выход из кухни, ведущий на внутренний дворик.
Пример размещения помещений на нижнем этаже дома с двумя этажами и двумя комнатами для проживания.

Планировка дома из трех комнат
Для семьи, состоящей из двух-трех человек, подходит компактный коттедж с тремя комнатами для проживания. Обычно такой проект включает:
- две спальни;
- небольшой проход;
- общую комнату для гостей;
- узкую кухню;
- коридор;
- ванную комнату.
При необходимости можно расширить полезную площадь, добавив веранду или дополнительную террасу с открытым проходом из кухни.
Если в доме предполагаются четыре комнаты
При планировке четырех помещений в жилище, логичнее ориентироваться на зонирование, что делает его идеальным для проживания большой семьи. В таком доме можно выделить одну зону для отдыха и другую для более активной деятельности, либо сделать обратный вариант:
- входное пространство с антресолью;
- три спальни;
- проход между отдельными комнатами;
- гостевой уголок;
- кухню;
- санузел.
Если есть достаточное пространство, можно включить прачечную, балкон, примыкающий к спальне, а также дополнительную террасу с выходом из кухни.
При разработке внутреннего распределения помещений важно учитывать распределение источников естественного освещения. Желательно проектировать помещения с учетом определенных пропорций, чтобы они не казались слишком узкими или излишне глубокими.

Важные нюансы, которые обязательно нужно учитывать при планировке коттеджа
При разработке жилого пространства жилья нужно учесть такие моменты, как число и размещение оконных и дверных проемов, присутствие балкона и высоту стен.
Планируем расположение окон
При планировании, где разместить оконные проемы, учитывают их размещение и число. Жилые помещения предпочтительно располагать на южной стороне. Освещение должно быть достаточным для уютной атмосферы, но не таким ярким, чтобы повредить мебель и обои. Если в проекте предусмотрена стеклянная стена, нужно установить защитные жалюзи или плотные шторы.
В типовом коттедже ставят одно окно в небольших спальнях и два в гостевой зоне. Если кухонная и обеденная зоны объединены, рекомендуется установить три окна.
Также можно применить нестандартные дизайнерские решения, создавая необычные типы окон: узкие, круглые, высокие оконные проемы с арочными верхами.
Изобилие оконных проемов обеспечивает достаточное освещение и циркуляцию свежего воздуха. Не нужно беспокоиться о холоде, так как современные оконные конструкции имеют хорошую теплоизоляцию.
Планируем высоту потолков
При определении высоты стен учитывается экономия материалов при строительстве и отделке. Очень высокие потолки могут вызвать ощущение пустоты в комнате, и мебель в таком помещении может выглядеть несоразмерно.
Слишком низкие стены могут вызывать ощущение давления и дискомфорта. Высота стен подбирается в зависимости от площади помещений. Важно, чтобы высота стен в помещениях на каждом этаже была одинаковой.
Маленькое пространство с чересчур высокими стенами может создавать впечатление колодца. При планировании высоты стен необходимо найти оптимальное решение, учитывая комфорт и визуальное восприятие помещений.
Балкон в частном доме
Некоторые владельцы частных домов мало используют балконы, предпочитая выходить на террасу или во двор. Поэтому необходимость балкона следует обдумать заблаговременно.
Если все же хочется его построить, то лучше не делать миниатюрный балкон, подобный тем, что есть в многоквартирных домах. Лучше построить просторный балкон, который будет выглядеть как архитектурный шедевр, используя кованые или другие декоративные перила.
На балконе необходимо предусмотреть достаточное пространство для комфортного отдыха - чтобы можно было разместить несколько шезлонгов или качающееся кресло, а также столик с сиденьями для чаепития.
Балконные перила должны быть высотой не менее одного метра, чтобы обеспечить безопасность. Если нет навеса, то в зимний период на балконе может скапливаться снег. Если пол без наклона, то после дождя там будет задерживаться вода.
Примеры удачных планировок домов
Вдохновившись разнообразием удачных дизайнов строений, можно легко представить собственное жилище. Рассмотрим варианты:
Одноэтажные дома:
- Дачный дом площадью 100 м2 с двумя уютными комнатами и привлекательной верандой.
- Зимний дом с просторной верандой и тремя комфортабельными комнатами, площадью 102 м2.
- Зимний коттедж с уютной верандой и четырьмя комнатами, площадью 115 м2.
Двухэтажные дома:
- Дачный дом с эркером и балконом, занимающий площадь 136 м2.
- Зимний коттедж с уютной верандой и просторными комнатами, занимающий площадь 130 м2.
- Дачный домик с мансардой, увеличивающей пространство, на площади 138 м2.
Эти и другие планы загородных коттеджей из СИП-панелей доступны на нашем сайте. Там вы найдете информацию о домокомплектах, основаниях и предварительные расценки на особняки классов эконом, стандарт и комфорт. Если у вас возникнут вопросы по комфортной планировке жилища, наши консультанты помогут.
Заключение
План будущего дома должен быть разработан профессионалами. Обсудите с ними предпочтения, чтобы убедиться, что планировка подходит вам. Также можно выбрать уже готовый стандартный проект с нужной планировкой.