Ленинградская область, Всеволожский район
2022
Год постройки
44 дня
Срок строительства
7 943 862 ₽
Цена
Параметры проекта
189 м2
Площадь
8,9х11,8 м
Размеры
4
Комнат
2
Санузлов
Современный каркасный дом по проекту «Либен» – надежная инвестиция в комфортное будущее вашей семьи.
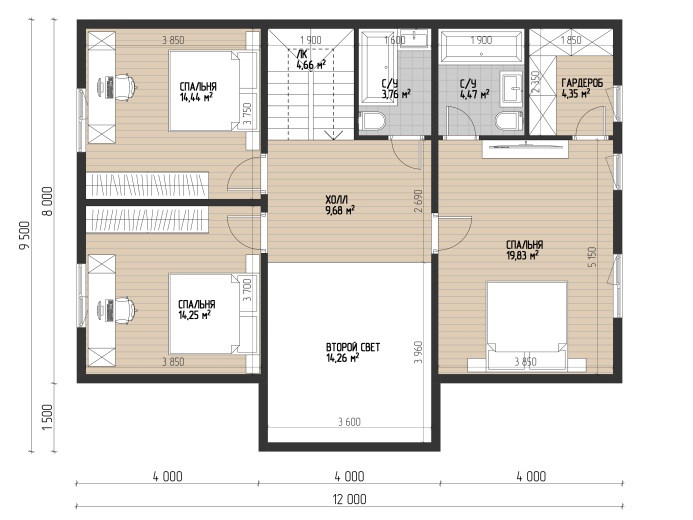
В любое время года этот дом будет дарить тепло и уют своим владельцам. Вся семья комфортно разместится в спальнях на втором этаже, тогда как для приема гостей предусмотрена отдельная комната на первом. Каждый из этажей оборудован ванной комнатой. В проекте дома «Либен» панорамные окна возможности панорамных окон использованы на максимум благодаря второму свету, размещённому над гостиной. Через просторную и светлую столовую, совмещенную с практично спланированной кухней, есть выход на большую террасу, куда так приятно переносить совместные трапезы или игры с детьми в теплое время года.
Отзыв заказчика
Компания «Дачный Сезон» построила для Радько Владимира дом. Заказчик делится опытом сотрудничества. Рассказывает, как работают архитекторы и строители. Делает вывод, стоит ли заказывать проектирование и строительство дома в компании «Дачный Сезон».
Владимир Радько
Другие построенные дома
Наши видеоролики Смотреть все (178)
Видеоотзывы Смотреть все (175)
Тип дома
ЭТАЖНОСТЬ
ОСОБЕННОСТИ
- В стиле фахверк
- В стиле шале
- С балконом
- С гаражом
- С мансардой
- С панорамными окнами
- С террасой
- С эркером
- В стиле прованс
- В стиле модерн
- В английском стиле
- В американском стиле
- С 2 спальнями
- С 3 спальнями
- С 4 спальнями
- Со вторым цветом
- С котельной
- С плоской крышей
- С двускатной крышей
- С ломаной крышей
- С вальмовой крышей
- В канадском стиле
- В классическом стиле
- В современном стиле
- В финском стиле
