Московская обл, Наро-Фоминский р-н, д. Новоглаголево
Этот дом мы построили для Екатерины, Андрея, их маленькой дочки и любимой собаки — но на самом деле он вмещает гораздо больше: шумные семейные вечера, детский смех, гостей, разговоры до поздней ночи и уютные утренние ритуалы.
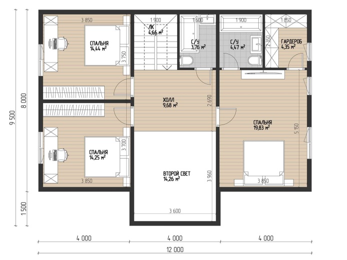
Проект "Либен" — это 204 м² продуманного уюта:
- На первом этаже — большая кухня-гостиная, где пекут пироги, собираются с друзьями и смотрят кино под пледом. Кабинет для сосредоточенной работы. Детская игровая, спрятанная под лестницей, как маленький волшебный мир. Санузел и техпомещение — всё для комфорта.
- Наверху — мастер-спальня с гардеробной, ванная комната с большой ванной, где можно выдохнуть после дня. Отдельные комнаты для дочки и гостей — потому что здесь всегда рады близким.
- И, конечно, второй свет — он наполняет дом воздухом и светом, делает пространство по-настоящему живым. А огромная терраса будто создана для летних завтраков, звёздных вечеров и душевных разговоров.
Отделка дома выполнена из высококачественных материалов: фасад - имитация бруса в теплых тонах с брашировкой, кровля - гибкая черепица, цоколь- панели Каньон, напольное покрытие террас - ДПК.
Этот дом — не просто про стены и метры. Он про семейную атмосферу, про место, куда хочется возвращаться. Каждый день.
В этом видео семья делится честным отзывом о строительстве мансардного каркасного дома площадью 204 кв.м для постоянного проживания с ребёнком. Узнайте, как прошёл процесс строительства, какие были плюсы и минусы, и почему они выбрали именно каркасник с мансардой для комфортной жизни на природе
Наши видеоролики Смотреть все (178)
Видеоотзывы Смотреть все (175)
Тип дома
ЭТАЖНОСТЬ
ОСОБЕННОСТИ
- В стиле фахверк
- В стиле шале
- С балконом
- С гаражом
- С мансардой
- С панорамными окнами
- С террасой
- С эркером
- В стиле прованс
- В стиле модерн
- В английском стиле
- В американском стиле
- С 2 спальнями
- С 3 спальнями
- С 4 спальнями
- Со вторым цветом
- С котельной
- С плоской крышей
- С двускатной крышей
- С ломаной крышей
- С вальмовой крышей
- В канадском стиле
- В классическом стиле
- В современном стиле
- В финском стиле
