КП "Андрейково парк", участок №215
2023
Год постройки
120 дней
Срок строительства
7 943 862 ₽
Цена
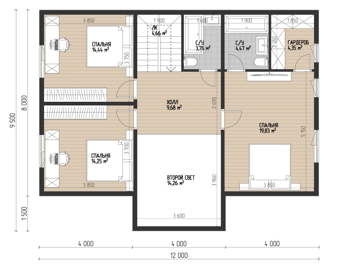
Параметры проекта
198 м2
Площадь
8х12 м
Размеры
4
Комнат
3
Санузлов
Хотите дом с комфортной мансардой и огромными окнами?
Тогда дом по проекту Либен - идеальный вариант!
Тогда дом по проекту Либен - идеальный вариант!
- 3 спальни;
- 3 санузла;
- кабинет;
- кухня-гостиная;
- гардеробная;
- терраса;
Отзыв заказчика
Строительная компания Дачный Сезон выиграла тендер на постройку 40 домов в коттеджном поселке Андрейково Парк. Первые 4 дома, построенные по канадской каркасной технологии уже сданы в эксплуатацию! Предлагаем вам посмотреть небольшой обзор домов на основе наших топовых проектов: Челси и Либен. Оптимальная удаленность от шумного города дает возможность жителям Андрейково Парк дышать свежим воздухом без ущерба для собственного комфорта и транспортной доступности. В поселке имеется развитая инфраструктура, начиная от спортивных площадок и кафе и заканчивая скверами для вечерних прогулок. А качественные и красивые дома со всеми коммуникациями создадут максимум комфорта для своих жильцов. Обзор готовых домов в КП Андрейково Парк
Другие построенные дома
Наши видеоролики Смотреть все (178)
Видеоотзывы Смотреть все (175)
Тип дома
ЭТАЖНОСТЬ
ОСОБЕННОСТИ
- В стиле фахверк
- В стиле шале
- С балконом
- С гаражом
- С мансардой
- С панорамными окнами
- С террасой
- С эркером
- В стиле прованс
- В стиле модерн
- В английском стиле
- В американском стиле
- С 2 спальнями
- С 3 спальнями
- С 4 спальнями
- Со вторым цветом
- С котельной
- С плоской крышей
- С двускатной крышей
- С ломаной крышей
- С вальмовой крышей
- В канадском стиле
- В классическом стиле
- В современном стиле
- В финском стиле