г. Сергиев Посад, СНТ Финансист
2022
Год постройки
45 дней
Срок строительства
Параметры проекта
190.28 м2
Площадь
8.75х11.65 м
Размеры
4
Комнат
2
Санузлов
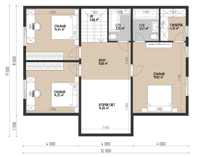
Каркасный дом по канадской технологии был построен в СНТ Финансист. За основу был взят проект Либен-2, этажность - мансардный, комплектация - под ключ. Линейные размеры 8.75х11.65 м, общая площадь 190.28 кв. м. Планировка: 4 спальни, 2 санузла, большая кухня-гостиная, отдельная котельная. Дом спроектирован со вторым светом. Фундамент - свайно-винтовой, цоколь фундамента отделан панелями Docke (цвет антрацит). Кровля - металлочерепица, обшивка стен - имитация бруса с грунтовкой и покраской. Проведены все инженерные коммуникации.
Отзыв заказчика
На видео - дом в снт Финансист, за основу которого был взят проект Либен-2. Дом был построен точно в срок, заказчик остался доволен работой специалистов.
Обзор дома в снт Финансист
Другие построенные дома
Наши видеоролики Смотреть все (178)
Видеоотзывы Смотреть все (175)
Тип дома
ЭТАЖНОСТЬ
ОСОБЕННОСТИ
- В стиле фахверк
- В стиле шале
- С балконом
- С гаражом
- С мансардой
- С панорамными окнами
- С террасой
- С эркером
- В стиле прованс
- В стиле модерн
- В английском стиле
- В американском стиле
- С 2 спальнями
- С 3 спальнями
- С 4 спальнями
- Со вторым цветом
- С котельной
- С плоской крышей
- С двускатной крышей
- С ломаной крышей
- С вальмовой крышей
- В канадском стиле
- В классическом стиле
- В современном стиле
- В финском стиле
